聯系電話:0415-6178555
公司地址:遼寧省丹東市儀器儀表產業基地一期4號3F
產品詳情:
ENT310開關狀態指示儀是我司根據目前中高壓開關柜技術發展而開發設計的一種新型多功能、智能化動態模擬狀態指示裝置,適用于中置柜、手車柜、固定柜、環網柜等多種成套裝置上
ENT310開關狀態指示儀是我司根據目前中高壓開關柜技術發展而開發設計的一種新型多功能、智能化動態模擬狀態指示裝置,適用于中置柜、手車柜、固定柜、環網柜等多種成套裝置上。它集開關柜一次回路模擬圖、手車(隔離刀)位置、斷路器位置(分、合閘狀態、彈簧儲能狀態)、接地閘刀位置等,高壓帶電顯示(帶驗電孔)、帶電閉鎖、缺相報警、開關柜內環境溫濕度的檢控及RS485通訊等功能于一體。該裝置不僅外型美觀大方,且優化了開關柜的整體布局,新一代開關柜內使用的理想更新產品。
技術參數

功能選項

前面板示意圖及說明
                 

狀態指示功能及特點(具體指示編號見前面板示意圖)
■手車位置指示
(1)手車處于工作位置(工作位置觸點閉合)時,手車指示紅色模擬條(20、22)亮;
(2)手車處于試驗位置(試驗位置觸點閉合)時,行車指示綠色模擬條(1、4)亮;
(3)手車處于工作位置和試驗位置之間(工作、試驗位置觸點都未閉合且斷路器接點全部未閉合)時,手車指示燈紅、綠(1、4、20、22)模擬條都不亮;
■斷路器狀態指示
(1)斷路器合閘(斷路器合觸點閉合)時,斷路器指示紅色模擬條(2)亮;
(2)斷路器分閘(斷路器分觸點閉合)時,斷路器指示綠色模擬條(3)亮;
(3)斷路器不在柜內(斷路器合、分觸點都未閉合)時,斷路器指示燈紅、綠模擬條(2、3)不亮;
■接地開關位置指示
(1)接地閘刀合閘(接地閘刀分/合觸點閉合)時,接地閘刀指示紅色模擬條(5)亮;
(2)接地閘刀未合閘(接地閘刀分/合觸點未閉合)時,接地閘刀指示綠色模擬條(6)亮;
■彈簧儲能(儲能)觸點閉合時,儲能指示紅燈(21)亮;
注意1:以上開關量接入必須為無源接點。
注意2:(預留)觸點可以作為預分/預合接入點,該觸點閉合時,模擬條閃爍提示預分/預合
■高壓帶電閉鎖功能
(1)高壓帶電顯示:當A、B、C三相帶電(電壓≥額定電壓的15%),相應的A、B、C三相指示燈(19、18、14)啟輝發光;
(2)高壓帶電閉鎖:當A、B、C三相任意一相帶電(電壓≥額定電壓的65%)時,高壓閉鎖指示紅燈(13)亮,高壓解鎖指示綠燈(12)熄滅,相應高壓閉鎖接點輸出彈開;三相全不帶電時,高壓解鎖指示綠燈(12)亮,高壓閉鎖指示紅燈(13)熄滅,相應高壓閉鎖接點輸出閉合;
(3)高壓缺相報警:當A、B、C三相中任意一相或兩相帶電(電壓≥額定電壓的65%)時,缺相報警接點輸出閉合;當三相全部不帶電或三相全部帶電時缺相報警接點輸出打開。
注意:A、B、C三相配用的傳感器,其輸出短路電流必須達到220uA±10%。
以上為全功能型的接線圖,具體型號的接線見背部接線標示恕不另行通知。
■溫濕度控制功能
(1)自動啟動加熱:在自動模式下當傳感器測得的環境溫度≤相應設置值時,或當傳感器測得的環境濕度≥相應設置值時,啟動加熱,“加熱”(8、10)指示燈長亮;
(2)自動退出加熱:在自動模式下,如為溫度、濕度同時啟動加熱則傳感器測得的環境溫度上升到≥相應設置值與回差之和,并且傳感器測得的環境濕度下降至≤相應設置值與回差之差時,退出加熱,“加熱”(8、10)指示燈熄滅;
(3)啟動排風:當傳感器測得的環境溫度≥相應設置值時,啟動風扇,“排風”(9、11)指示燈長亮;
(4)停止排風:當傳感器測得的環境溫度下降至≤相應設置值與回差之差時,停止排風,“排風”(9、11)指示燈熄滅;
(5)手動加熱除濕:當需要手動加熱時,按“手動自動”按鈕大于3S,加熱器開始加熱,相應加熱指示燈閃爍指示;再次按“手動自動”按鈕大于3S,退出手動加熱,相應加熱指示燈熄滅,并轉到自動控制狀態;
注意:當手動加熱啟動,實際溫度上升到高溫排風啟動設定值時,會強制保護關閉加熱器,自動跳轉到自動加熱排風狀態;
出廠設置參數:一經設定不可更改,除非返廠重新設定
a) 1、2路溫度:(升溫溫度)5℃、降溫溫度40℃ 回滯量:10℃
b) 1、2路濕度:85%RH 回滯量:10%RH
c) 通訊參數設置:
地址:1 波特率:9600 停止位:0(無校驗)
■通信功能
支持遠方查詢開關量狀態,支持遠方查詢繼電器輸出狀態。
1)通信方式:RS-485;
2)通信規約:ModBus-RTU;
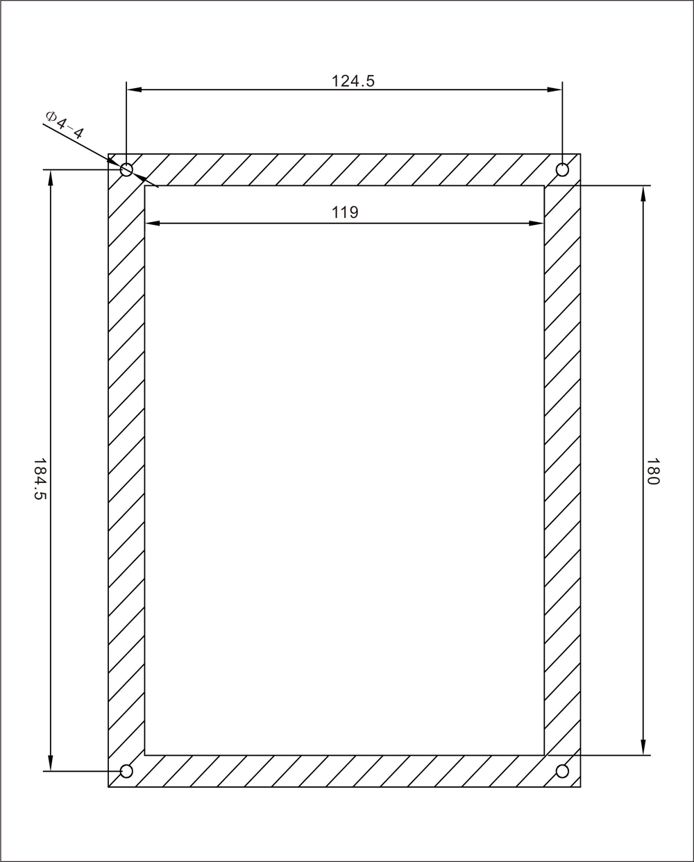
安裝屏開孔(長180*寬119mm)

外形尺寸圖


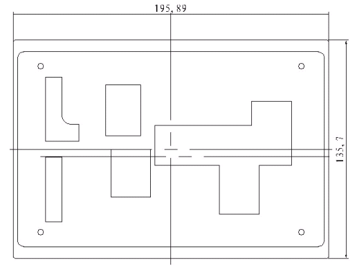
背面端子示意圖及說明

(背面端子說明)

傳真:0415-6226678
郵箱:ddentdq@163.com
地址:遼寧省丹東市儀器儀表產業基地一期4號3F
Copyright ? 丹東伊諾特電氣有限公司 All Rights Reserved. 遼ICP備11009736號-1